Our site uses cookies, including for advertising personalisation. For more information, see our cookie policy.
Accept cookies Reject cookies Manage settings

Property: The Cartington

Apartment Plot:
East Block First Floor Apartment 15

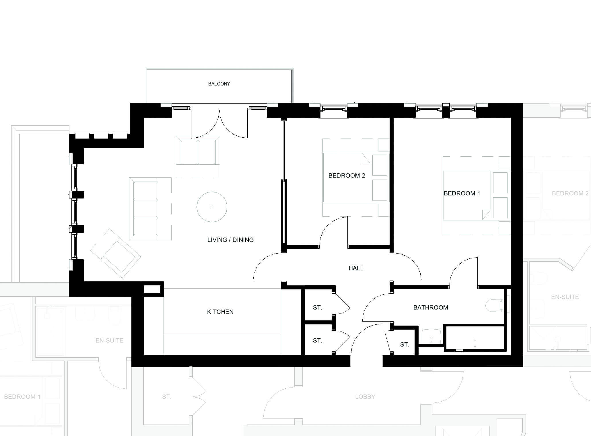
Introducing The Cartington, a stylish first-floor residence at King Edwards Place, situated within the highly regarded East block, The Cartington features a sleek two-bedroom, one-bathroom layout, expertly designed for modern living.

This residence boasts an open-plan kitchen that flows seamlessly into the living and dining area, creating an inviting space for entertainment and daily comfort. Enhancing this area is a balcony accessible from the living/dining space, providing a delightful outdoor extension for relaxation and enjoying the views. The Cartington combines functional design with elegant touches and the added bonus of a balcony, offering a perfect living environment. Secure basement car parking further adds to the convenience, making The Cartington an ideal choice for those seeking a sophisticated lifestyle in a prestigious location.

Bedrooms:
2
Bathrooms:
1
Parking:
Basement Car Park
Price:
SOLD
Status:
Sold

Floorplans

First
First
Bathroom: 66 sqft
3.30m (max) x 1.79m (max)
Bedroom 1: 184 sqft
3.45m x 5.19m
Bedroom 2: 124 sqft
3.05m x 3.76m
Kitchen: 97 sqft
4.66m x 2.16m
Living / Dining: 295 sqft
5.82m (max) x 4.84m (max)

Floorplans are produced for illustrative purposes only. Room sizes shown are between arrow points as indicated on plan. The dimensions have tolerances of + or -50mm and should not be used other than for general guidance. If specific dimensions are required, enquiries should be made to the sales consultant.

Info zone - hover/tap

Specifications

External Features
  • Stone - Dressed natural cut ashlar stone
  • Bricks - Lichfield red multistock clay
  • Slate - Natural dark grey slate
  • Windows - White UPVC double glazed
  • Gardens - Landscaped communal and private gardens using native specimens to screen and provide shelter
  • External Doors - Stone coloured powder coated aluminium
King Edwards Place - External Features
Internal Finishes
  • Timber veneer doors
  • Painted internal walls
  • Engineered flooring to hallways, living and kitchen areas. Colour subject to palette
  • Carpets to bedrooms. Colour subject to palette
King Edwards Place - Internal Finishes
Kitchens

Newcastle Furniture Company are producing a bespoke kitchen range for King Edward’s Place. Founded in 1979, all the kitchens are handmade on Tyneside to an exceptional standard. Each apartment purchaser will visit their showroom to design and specify their kitchen.

As standard, each kitchen will be a custom made modular design with solid beech drawers and a 30mm quartz worktop. Fully integrated NEFF appliances are standard, along with chrome taps. Upgrades are available from the standard specification at the buyer’s cost.

King Edwards Place - Kitchens
Bathrooms and En-Suites

Ida Homes are working with h20 Bathroom Design Company; a leading family run bathroom company based in Gateshead. They are the region’s largest supplier of Villeroy & Boch. Each apartment will be fitted with Villeroy & Boch throughout and purchasers will visit the h20 showroom to choose the level of fitting.

Tiling will be selected post reservation. Upgrades are available from the standard specification at the buyer’s cost

New Build Property For Sale in Morpeth - Bathrooms and En-Suites
Heating and Electrical
  • Energy efficient LED lighting
  • Spot lights and pendants fitted
  • Brushed chrome light fittings
  • Heating via air source heat pumps with underfloor heating
  • Predicted EPC for all apartments are ‘B’
King Edwards Place - Heating and Electrical
Technology, Security and Safety
  • BT fibre optic broadband
  • Central TV ariel points
  • Video entry
  • External lights fitted with PIR detectors
  • Smoke, heat and carbon monoxide alarms fitted to all apartments
  • Bespoke Options - A range of optional additions are available to finish your home in the style you want. Please discuss with the sales team.
King Edwards Place - Heating and Electrical
Communal Areas and Parking
  • Lift access from car park to all floors
  • Secure door entry system
  • Automatic lighting to stairs
  • Carpet to communal corridors
  • 2 parking spaces per apartment
  • 1 EV charging point per apartment
King Edwards Place - Communal Areas and Parking
Ownership and Service Charge
  • All apartments will be sold on completion by way of a 999 year lease at a nil ground rent. Following completion of the development, and the sale of the last of the apartments, ownership of the freehold will be transferred to Edward’s Place Morpeth Ltd, a resident controlled management company
  • The maintenance of the communal areas, together with arranging such matters as buildings and other insurances and statutory compliance issues, the cost of which form part of the service charges, will initially, in the first year, be undertaken by a local management company appointed by the developer, thereafter each apartment owner as a member of Edward’s Place Morpeth will jointly decide on future management responsibilities
King Edwards Place - Ownership and Service Charge

Site plan

Location

Arrange a viewing
Register interest

Arrange a viewing at Development, Location

Fill in your details below and we'll be in touch ASAP to arrange your appointment. Alternatively you can call us on 01665 660910.

 

Interested in Development

Fill in your details below and we'll be in touch with more information soon. Alternatively you can call us on 01665 660910.

Premier Guarantee Logo Build Zone Logo

New Build Homes in Northumberland

Request a Callback

Fill in your details below and we'll call you back as soon as possible. Alternatively you can call us on 01665 660910.

Send us a message

Fill in your details below and we'll be in touch to discuss your message. Alternatively you can call us on 01665 660910.